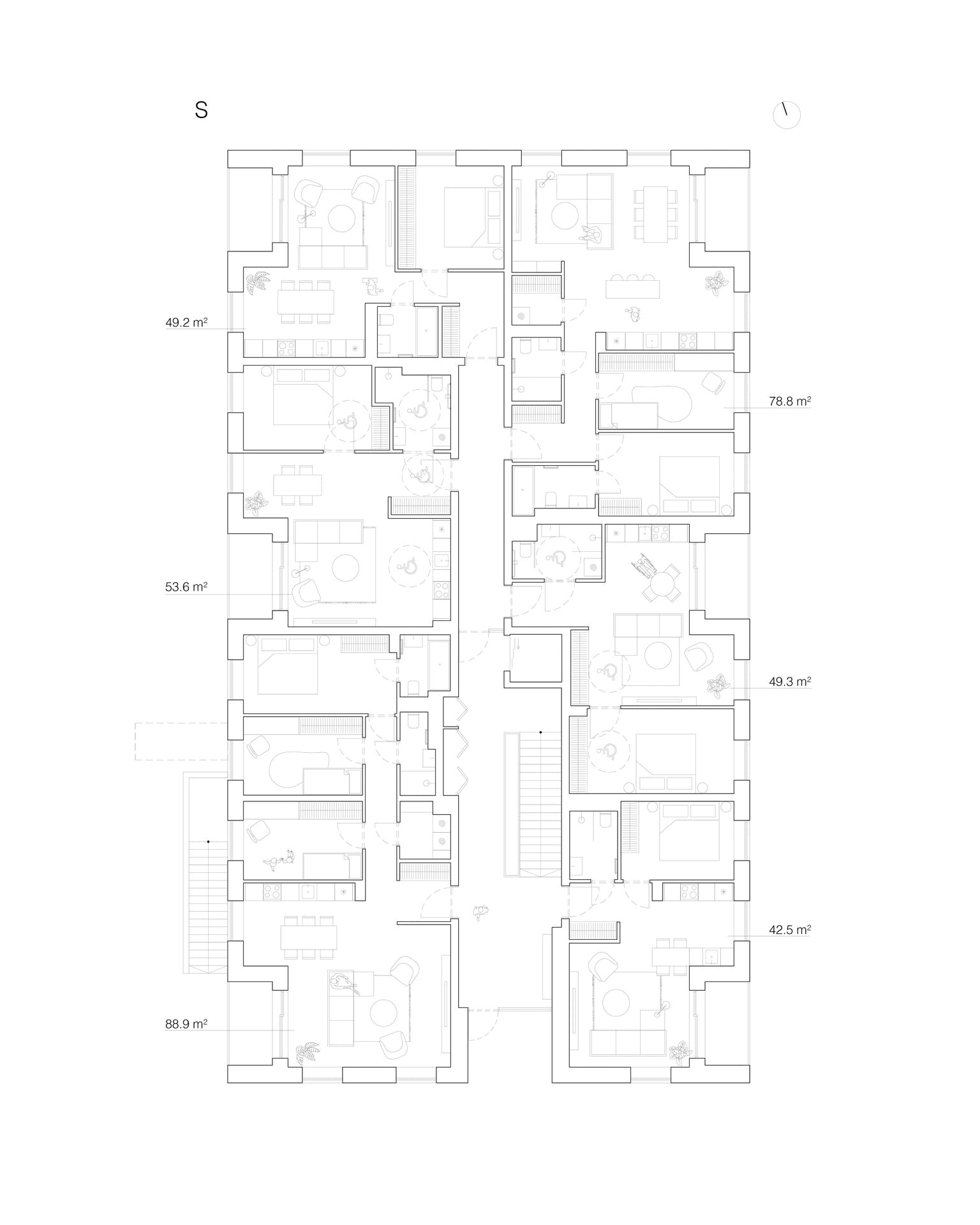
Daudzdzīvokļu māju interjers Igaunijā

interjera projekta komanda: M. Dzene, V. Dzenis, E. Gaitniece

arhitektūras projekta komanda: a part arhitekti & Symptom Arhitekt OÜ

gads: 2024-2025

platība: 3474 m2

statuss: saskaņots būvprojekts

 Interjera projekts divām pašvaldības daudzdzīvokļu ēkām Narvas pilsētā, Igaunijā, radot līdzsvarotu un patīkamu dzīves telpu māju iedzīvotājiem.
 
Interjera projekts divām pašvaldības daudzdzīvokļu ēkām Narvas pilsētā, Igaunijā, radot līdzsvarotu un patīkamu dzīves telpu māju iedzīvotājiem.

Daugava Loft

interjera projekta komanda: M. Dzene

gads: 2025

platība: 62 m2

statuss: realizēts

Riga Blue

projekta komanda: M. Dzene, A. Hinca

dzīvokļa plānojums: E. A. Bajāra

gads: 2022-2024

platība: 130 m2

statuss: realizēts

Dzīvokļa interjers Šarlotes ielā

projekta komanda: M. Dzene

gads: 2023 - 2025

platība: 80 m2

statuss: realizēts

foto: M. Kuplā

Mežaparka villa

projekta komanda: Dzenis & Dzene arhitekti (M. Dzene, V. Dzenis) sadarbībā ar Mars Studio (M. Sīmane)

gads: 2022-2024

platība: 320 m2

statuss: saskaņots būvprojekts

Dzīvokļa interjers Āgenskalna ielā

projekta komanda: M. Dzene

gads: 2023 - 2024

platība: 180 m2

statuss: realizēts

foto: A. Rozenbergs

Rindu mājas interjers Jaunā Mežaparka ielā

projekta komanda: V. Dzenis, M. Dzene

gads: 2021 - 2022

platība: 200 m2

statuss: realizēts

foto: A. Rozenbergs

Dzīvokļa interjers Antonijas ielā

projekta komanda: M. Dzene, A. Hinca

gads: 2022-2024

platība: 100 m2

statuss: realizēts

foto: A. Rozenbergs

Zobārstniecības interjers Baznīcas ielā II

projekta komanda: M. Dzene

platība: 80 m2

gads: 2024

statuss: realizēts

foto: A. Rozenbergs

Rakstniecības un Mūzikas muzeja interjers un fasādes koncepts

projekta komanda: OUTOFBOX architecture (P. Bajārs) sadarbībā ar arhitektēm E. A. Bajāru un M. Dzeni

gads: 2019 - 2024

interjera platība: 1250 m2

statuss: realizēts

foto: M. Dzene

Privātmājas arhitektūra Rīgā

projekta komanda: V. Dzenis, M. Dzene

gads: 2021 - 2025

platība: 120 m2

statuss: būvniecības procesā

Privātmājas interjers Dīķa ielā

projekta komanda: M. Dzene sadarbībā ar arhitekti E. A. Bajāru

gads: 2019 - 2020

platība: 210 m2

statuss: realizēts

foto: M. Gritāne

Zobārstniecības interjers Martas ielā

projekta komanda: M. Dzene

platība: 190 m2

gads: 2018 - 2019

statuss: realizēts

foto: A. Tiltiņš 

Dzīvokļa interjers Zaubes ielā

projekta komanda: M. Dzene

gads: 2019 - 2020

platība: 90 m2

statuss: realizēts

foto: M. Gritāne

Zobārstniecības interjers Baznīcas ielā

projekta komanda: M. Dzene

platība: 62 m2

gads: 2018

statuss: realizēts

foto: M. Šteins

Kāpņu un mēbeļu dizains privātmājai Mārupē

projekta komanda: M. Dzene sadarbībā ar SBS Design & Build

gads: 2018 - 2019

statuss: realizēts

Jaunā Rīgas teātra kafejnīca Nr. 2

projekta komanda: M. Dzene

platība: 72 m2

gads: 2017 - 2018

statuss: realizēts

Privātmājas arhitektūra un interjers Jūrmalā

projekta komanda: V. Dzenis

gads: 2020 - 2022

platība: 200 m2

statuss: būvniecības procesā

Roche Latvia pagaidu biroja interjers

projekta komanda: M. Dzene sadarbībā ar arhitektēm L. Kreisleri un M. Sīmani

platība: 350 m2

gads: 2018 - 2019

statuss: realizēts

Jaunā Rīgas teātra kafejnīca Nr. 1

mēbeļu dizains un telpas iekārtojuma plānojums 

projekta komanda: M. Dzene sadarbībā ar arhitekti E. A. Bajāri

gads: 2017

platība: 115 m2

statuss: realizēts

Dzīvokļa interjers Eduarda Smiļģa ielā

projekta komanda: V. Dzenis, M. Dzene

platība: 42 m2

gads: 2016 - 2018

statuss: realizēts

Brīvdienu mājas arhitektūra Melnsilā

projekta komanda: OUTOFBOX architecture (P. Bajārs) sadarbībā ar arhitekti M. Dzeni

gads: 2018

platība: 160 m2

statuss: izstrādāts būvprojekts minimālā sastāvā

Dzīvokļa pārplānošana un interjers Ropažu ielā

projekta komanda: M. Dzene, V. Dzenis

platība: 60 m2

gads: 2022 - 2023

statuss: būvniecības procesā

Atpūtas komplekss Pāvilostā

projekta komanda: V. Dzenis

gads: 2020

platība: 295 m2

statuss: mets

Īstermiņa īres dzīvokļu plānojums Valentīna ielā

projekta komanda: V. Dzenis

gads: 2019 

platība: 380 m2

statuss: skice